Lorient inaugure sa Maison de l’Agglomération
Vendredi 24 Octobre dernier, le Président de l’agglomération de Lorient, Norbert Métairie présentait, aux côtés de l’équipe de maîtrise d’oeuvre et de nombreux élus, le nouveau siège de l’agglomération du Pays de Lorient. Le public était venu en nombre pour découvrir ce nouveau bâtiment qui ouvrait également ses portes pendant tout le week-end.
La Maison de l’Agglomération se situe dans le quartier du Péristyle, le long de la promenade des quais de Lorient. Il s’agit du premier édifice construit sur la ZAC du Peristyle (Agence TER). Faisant face à la rade, le bâtiment réalisé par les architectes Jean de Giacinto et Duncan Lewis rayonne et identifie le territoire. Sa peau bleutée évoque l’environnement maritime et témoigne de l’histoire et des fondements du territoire lorientais sur le lieu de l’implantation de la Compagnie des Indes.
Le projet est une allégorie de la nature, du ciel, de la mer et de la terre. La façade bleutée du bâtiment représente une pixellisation de la surface de l’eau. Le sol minéral s’élève en créant de larges strates rocheuses menant vers l’intérieur de l’édifice. Le vent s’engouffre dans le volume aérien du parvis. Les puits de lumière transpercent le volume suspendu comme des rayons de soleil dans un ciel nuageux.
- Vue générale du Péristyle – Maison de l’Agglomération de Lorient ©Stéphane Cuisset
- Parvis – Maison de l’Agglomération de Lorient © Jean de Giacinto
- Puits de jour – Maison de l’Agglomération de Lorient ©Stéphane Cuisset
- Puits de jour – Maison de l’Agglomération de Lorient ©Stéphane Cuisset
- Double peau – Maison de l’Agglomération de Lorient ©Stéphane Cuisset
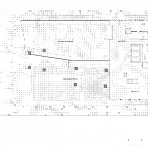
- Plan du parvis – Maison de l’Agglomération de Lorient © Jean de Giacinto
- Salon d’honneur – Maison de l’Agglomération de Lorient © Philippe Amoros
- Bureaux – Maison de l’Agglomération de Lorient © Jean de Giacinto
- Auditorium – Maison de l’Agglomération de Lorient © Jean de Giacinto
- Auditorium – Maison de l’Agglomération de Lorient © Jean de Giacinto
Quatre éléments fondateurs structurent la Maison de l’Agglomération: le socle, les pilotis, le massif, les patios.
Le socle est la partie émergente du sol. C’est l’élément qui exprime la solidité et l’encrage à la roche locale. Il s’agit de la racine du bâtiment depuis laquelle le reste de l’édifice prend appui et s’élance. Il est traité en béton brut parsemé de pavés incrustés de pierres naturelles. Dédié aux citoyens, c’est un espace public à part entière, tant d’un point de vue fonctionnel que visuel. L’escalier monumental, qui prolonge le parvis, donne accès à l’accueil. Il joue le rôle de théâtre de plein air et de forum.
Les pilotis composent une couronne en périphérie du bâtiment constituée de poteaux métalliques de section carrée. Ces derniers forment le support du massif mais sont aussi des éléments structurants du socle. Ils permettent de libérer l’espace public au niveau du parvis, privilégiant ainsi l’ouverture des espaces destinés au public. Les pilotis créent une interface entre les espaces publics et les espaces plus privés des bureaux entre le socle et le massif.
Le massif reçoit les espaces de travail que constitue l’ensemble des bureaux. C’est un parallélépipède paré de quatre façades aux caractéristiques techniques différentes selon leur orientation mais d’uniformité esthétique. Elles se dédoublent en deux peaux créant un espace tampon qui permettent la gestion de la circulation de l’air en périphérie du massif.
Les patios symbolisent des clairières végétales au cœur du massif, recréant des jardins suspendus virtuels. Ces espaces inondent les plateaux de lumière mais aussi les espaces publics du socle et des pilotis. Tels des arbres qui chercheraient à mieux capter cette lumière, ils se développent de haut en bas en s’orientant pour optimiser l’absorption solaire.
Equipe de Maîtrise d’oeuvre
Architecte mandataire Jean de Giacinto
Architecte associé Duncan Lewis
Hubert Pénicaud Green Building
Egis Centre‐Ouest
Viam Acoutique
Quelques chiffres
Montant Travaux : 24M € HT
Surface SHON : 9435m²
Longueur : 56.30m ; Largeur : 33.50m ; Hauteur : 25.80m
10 niveaux dont 2 sous-sols
200 bureaux, 300 postes de travail, 10 salles de réunion, un salon d’honneur, un auditorium, une salle d’expo














14 Commentaires
RT @Urbanewsfr: #Lorient inaugure sa Maison de l’Agglomération http://t.co/TrHa4B1feT #Architecture
Lorient inaugure sa Maison de l’#agglomération, dont la façade figure une « pixellisation de la surface de l’eau » http://t.co/AJcz3zONCF
RT @LaurentRiera: Lorient inaugure sa Maison de l’#agglomération, dont la façade figure une « pixellisation de la surface de l’eau » http://t…
#Lorient: décryptage architectural de la nouvelle Maison de l’Agglomération http://t.co/EKX2TucE5u
RT @ThierryHubac: #Lorient: décryptage architectural de la nouvelle Maison de l’Agglomération http://t.co/EKX2TucE5u
RT @ThierryHubac: #Lorient: décryptage architectural de la nouvelle Maison de l’Agglomération http://t.co/EKX2TucE5u
Lorient inaugure sa Maison de l’Agglomération | UrbaNews.fr http://t.co/uQpv5AGZLV
#Lorient: décryptage architectural de la nouvelle Maison de l’Agglomération http://t.co/JviP3V4U1A via @ThierryHubac http://t.co/jjYVjxPC5t
RT @lcdesign56: #Lorient: décryptage architectural de la nouvelle Maison de l’Agglomération http://t.co/JviP3V4U1A via @ThierryHubac http:/…
RT @lcdesign56: #Lorient: décryptage architectural de la nouvelle Maison de l’Agglomération http://t.co/JviP3V4U1A via @ThierryHubac http:/…
#Lorient inaugure sa Maison de l’Agglomération #architecture http://t.co/qP34jLEnDB
RT @AttitudeUrban: #Lorient inaugure sa Maison de l’Agglomération #architecture http://t.co/qP34jLEnDB
RT @AttitudeUrban: #Lorient inaugure sa Maison de l’Agglomération #architecture http://t.co/qP34jLEnDB