Habitat insolite : House of Hiyoshi
Habiter un coin de rue est plutôt habituel mais habiter dans un virage serré l’est beaucoup moins. Le projet du Studio Eana permet de répondre aux contraintes de ces espaces exigus grâce à une architecture simple mais efficace.
« House in Hiyoshi » se trouve à Yokohama (Japon), la maison a été dessinée pour accueillir un couple, au sud du parc urbain de la ville, souhaitant rester proche des nombreuses commodités que cet emplacement insolite leur permet tout en gardant leur style de vie avec un projet répondant à leurs exigences économiques.
Conçue dans un style simple et rectangulaire, cette maison de 91m² offre des volumes (4 mètres sous plafond dans le salon) et un nombre de pièces intéressants. La baie vitrée avec vue sur le parc apporte de la luminosité et une qualité visuelle pour ses occupants.
Le Studio Eana apporte une réponse originale aux enjeux de la densification urbaine.
- House of Hiyoshi. Crédits : Koichi Torimura
- Entrée de la maison. Crédits : Koichi Torimura
- Salon. Crédits : Koichi Torimura
- Baie vitrée avec vue sur le parc. Crédits : Koichi Torimura
- Terrasse. Crédits : Koichi Torimura
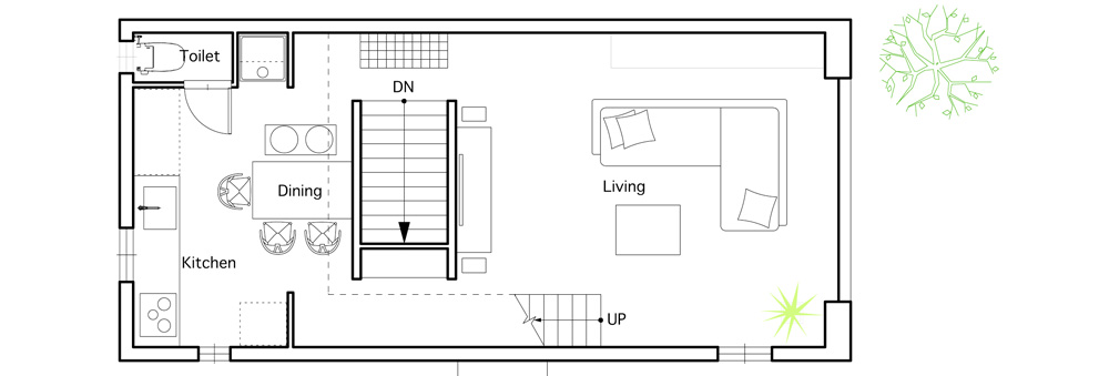
- Plan d’ensemble. Crédits : Koichi Torimura
- 1er étage. Crédits : Koichi Torimura
- 2ème étage. Crédits : Koichi Torimura
- Couple transversale. Crédits : Koichi Torimura













5 Commentaires
RT “@Urbanewsfr: Habitat insolite : House of Hiyoshi http://t.co/1YbLDjz2MI #architecture #japon”
RT @Urbanewsfr: Habitat insolite : House of Hiyoshi http://t.co/651E4595Iy #architecture #japon
Habitat insolite ou comment habiter un virage House of Hiyoshi http://t.co/ezcXkvrXWm via @Urbanewsfr
House of Hiyoshi par le Studio Eana : Habiter un coin de rue et même dans un virage serré …http://t.co/H2j5mz2WJA via @Urbanewsfr
RT @Urbanewsfr: Habitat insolite : House of Hiyoshi http://t.co/651E4595Iy #architecture #japon