Sur un site coincé entre l’autoroute A13 (à une vingtaine de mètres) et l’emprise ferroviaire de la gare de Garches – Marne-la-Coquette, l’agence LEM+ Architectes a livré un ensemble de 44 logements sociaux HQE constitué de maisons individuelles avec jardins privatifs, et d’appartements avec balcons, pour l’Immobilière 3F. Celui-ci prend la forme d’un U étiré, protégeant le cœur d’îlot des nuisances sonores dues à la proximité immédiate de l’autoroute.
La profondeur des fondations (14 mètres) permet aux logements de ne pas subir les vibrations de surface du trafic automobile et ferroviaire.
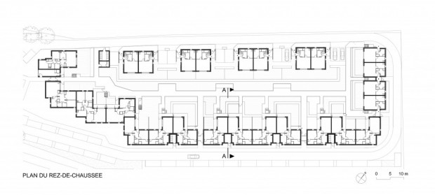
Les pièces de services (cuisine, salle de bain) sont situées côté autoroute afin de donner un caractère plus agréable aux pièces principales (salon, chambres) tournées vers les balcons et jardins privatifs en cœur d’îlot. Les loggias ont permis de mettre de grande baies vitrées côté sud (donc autoroute) pour apporter une luminosité maximale aux logements tout en les préservant du bruit de la circulation. Un travail important a été fourni pour chercher à optimiser l’ensoleillement des logements.
Les toitures en pente, avec une ligne de faitage continue de 9 mètres, réduisent la pollution sonore en cœur d’îlot et permettent d’offrir des duplex pour les habitants. La faible hauteur des toitures en cœur d’îlot permet un meilleur ensoleillement des jardins et des espaces commun.
Un système de ventilation double flux apporte une solution à la limitation de la pollution atmosphérique dans les logements. Chaque logement bénéficie de sa propre chaudière au gaz ainsi que d’un ballon solaire individuel. Des panneaux solaires ont également été installés.
La proximité de la gare et des jardins ouvriers du parc de Saint-Cloud incite aux déplacements doux, ce qui explique le choix de positionner les places de stationnements sur la voie périphérique qui a été créée. L’intérieur du U est complètement piéton apportant un cadre agréable et sécurisant.
Des plantations coloniseront le mur de soutènement côté voie ferrée et la clôture côté autoroute afin d’apporter un cadre paysager de qualité.
Malgré un site difficile, l’agence semble avoir réussi le pari de produire des logements agréables à quelques mètres de l’autoroute.
En images
